Projet Immobilier
Marrakech
Entre nature et capitale culturelle
Au coeur d'une majestueuse oliveraie orientée plein sud, plantée aux pieds du majestueux Atlas, le projet Projet A commence à prendre forme...
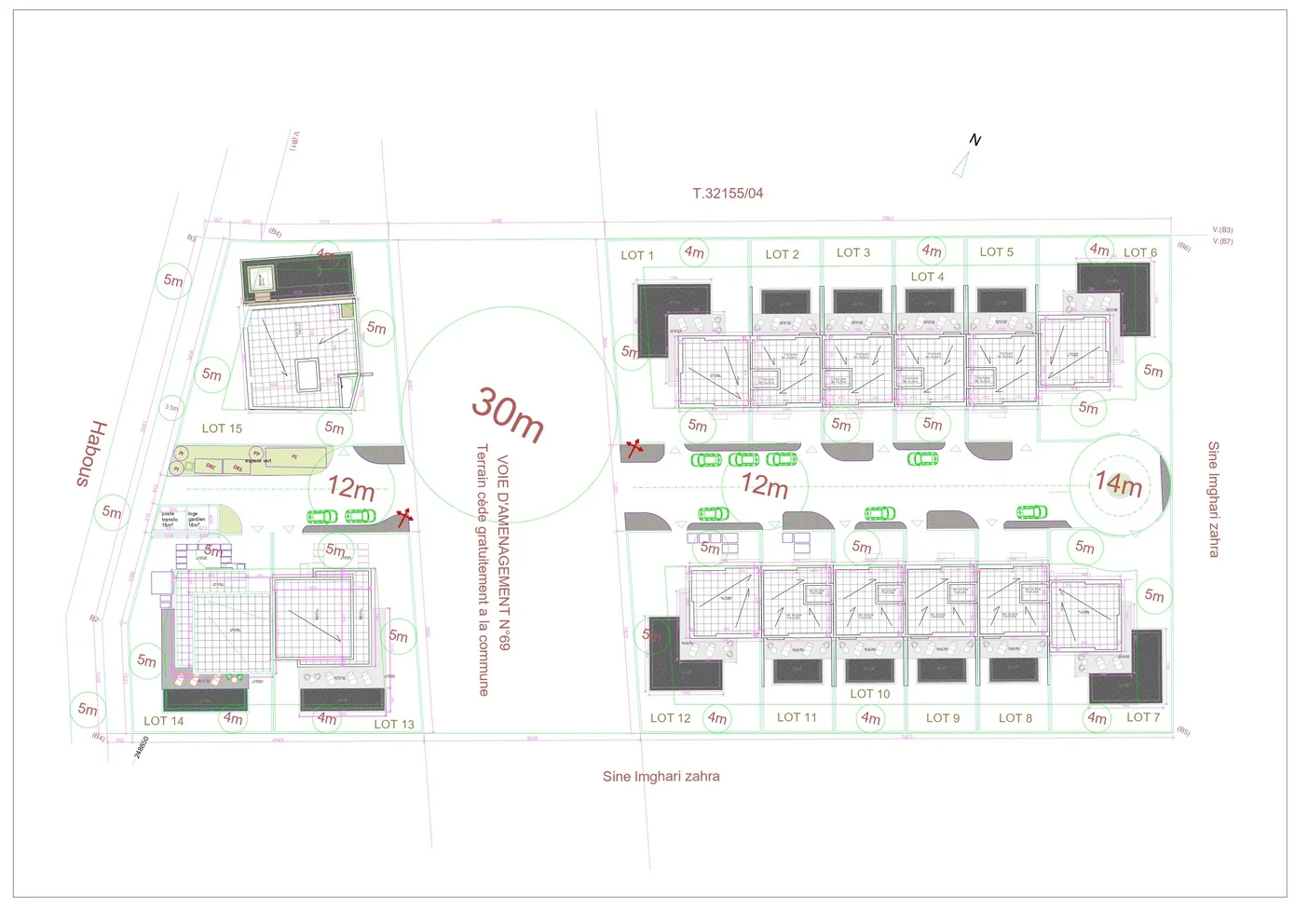
À 17 minutes du centre ville de Marrakech, ce lotissement d'un hectare se compose de 15 parcelles ayant une superficie de 6200 m² environ. Chaque villa peut être construite sur une superficie de 323m² en étage.
Dans ce parc verdoyant, tout se fond et se confond avec la nature. Rien n'est laissé au hasard, venez côtoyer le luxe tout en vivant la simplicité avec merveille.
Le Projet A est entièrement sécurisé et offre un cadre idéal pour une vie de famille avec enfants. Il sera entretenu par des jardiniers et piscinistes qualifiés pré-sélectionnés pour leur professionnalisme.
Quatre types de villas sont disponibles, chacune avec piscine privée et finitions haut de gamme.
2 Villas
S-Sol / RDC / Étage
4 Villas
RDC / Étage
8 Villas
RDC / Étage
1 Villa
S-Sol / RDC / Étage
Les villas Projet B sont proposées en Vente en État Futur d'Achèvement : un mode d'acquisition sécurisé qui vous permet d'investir sereinement tout en bénéficiant d'avantages exclusifs.
Atlas Acces publie une série de guides sur l'investissement immobilier, souhaitez-vous recevoir plus d'informations à ce sujet avant de poursuivre la découverte du projet ?
S-Sol / RDC / Étage – 2 Villas
Salon enterré
Salon
Salle à manger
Chambre 01
Chambre 02
RDC / Étage – 4 Villas
Salon
Salon enterré
Salle à manger
Chambre
Chambre
RDC / Étage – 8 Villas
Salon
Salle à manger
Chambre
Chambre
S-Sol / RDC / Étage – 1 Villa
Salle de sport
Salle cinéma
Cuisine
Salon
L'emplacement géographique est idéal, au cœur de Marrakech et à proximité de toutes les commodités.

Le rêve prend vie au Maroc
La société de construction est spécialisée dans la réalisation et le développement de projets immobiliers résidentiels (villas & appartements), résidences hôtelières, bureaux et locaux d'activités.
Avec une expertise reconnue dans le secteur immobilier marocain, elle s'engage à offrir des prestations de haute qualité, alliant design contemporain et respect des traditions architecturales locales.
Ce programme s'adresse autant aux particuliers projetant une installation au Maroc qu'aux investisseurs souhaitant diversifier leur patrimoine. Remplissez le formulaire ci-dessous pour être recontacté dans les meilleurs délais :
Recevez notre série d'e-publications sur l'investissement immobilier résidentiel et locatif en V.E.F.A.
Votre demande a bien été envoyée.